全国免费咨询热线400-610-6008 工作日一线畅通010-65264178 24小时专家热线13671039588 / 13520823968
 
 
收起信息
展开信息

银色海岸-1居室至4居室别墅

时间:2013-07-01 12:01 浏览量:

房产位置 : 银色海岸
房产类型: 1居室和2居室的公寓,或者3居室和4居室的别墅
房产面积: 120平米起
停车位: 配备
房产价格: 30万欧元至90万欧元不等


别墅外景图



别墅外景图




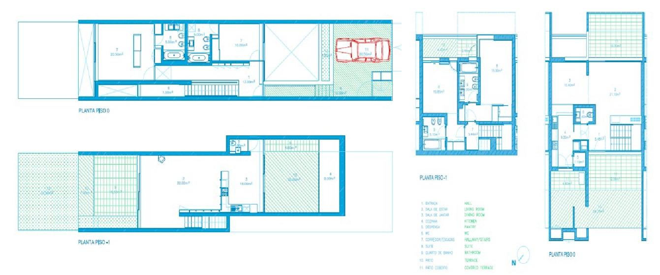
建筑平面图
 


分享到:
美加金联二维码生成器
  • 全国免费咨询热线
    400-610-6008
  • 工作日一线畅通
    010-6526-4178
  • 24小时专家热线
    136-7103-9588
  • 【扫一扫】
    关注美加金联官方微信
    有机会参加欧洲免费看房团

    咨询 评估