全国免费咨询热线400-610-6008 工作日一线畅通010-65264178 24小时专家热线13671039588 / 13520823968
 
 
收起信息
展开信息

里斯本-高尔夫独栋别墅

时间:2013-07-01 12:58 浏览量:

房产位置 : 里斯本Oeiras
房产类型: 4居室的独栋别墅
房产面积: 220平米起
停车位: 配备
房产价格: 50万欧元起


远景图


别墅外景图


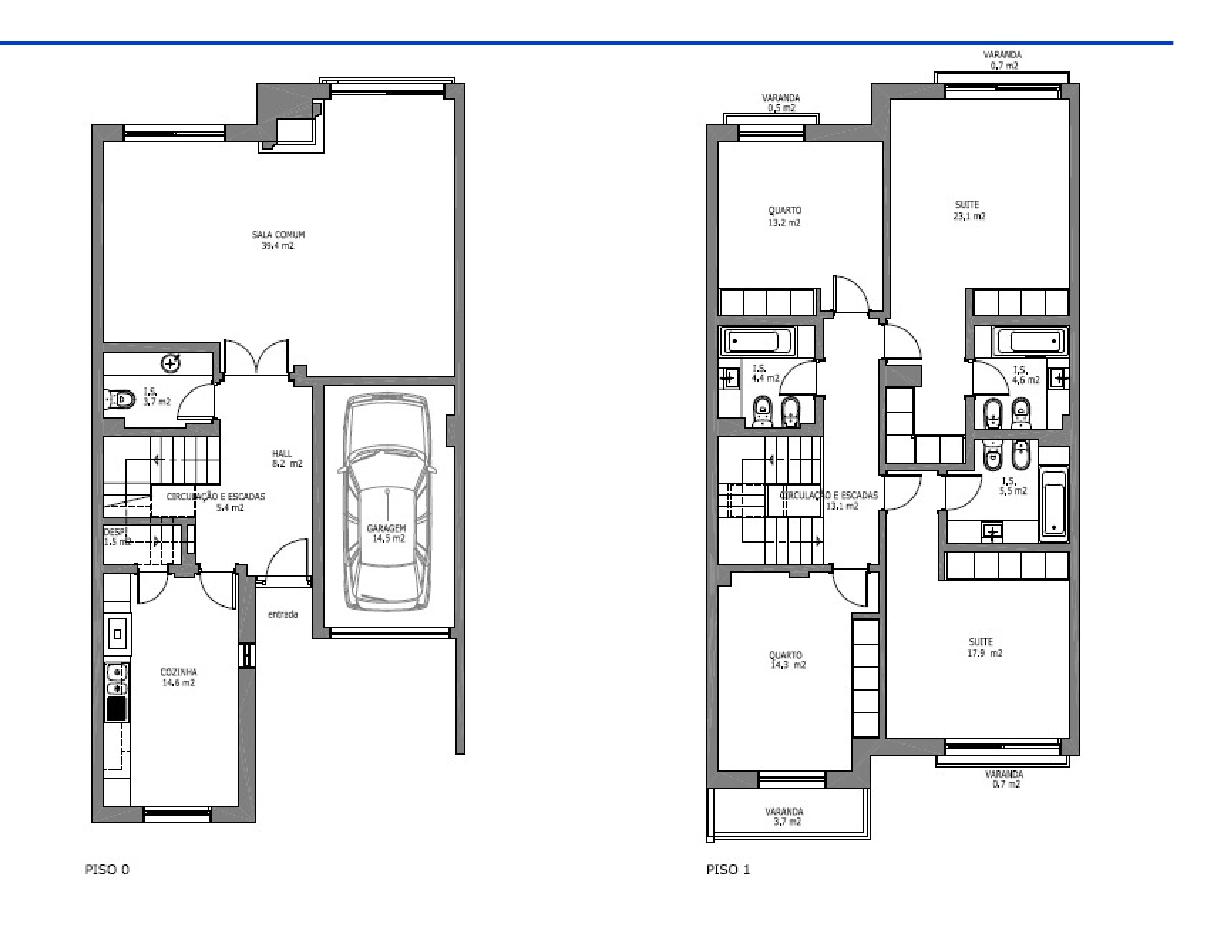
建筑平面图


分享到:
美加金联二维码生成器
  • 全国免费咨询热线
    400-610-6008
  • 工作日一线畅通
    010-6526-4178
  • 24小时专家热线
    136-7103-9588
  • 【扫一扫】
    关注美加金联官方微信
    有机会参加欧洲免费看房团

    咨询 评估