|

二层别墅:
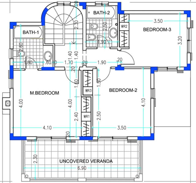
·3个卧室,2个洗手间
·土地面积:776 ㎡
·覆盖面积:172 ㎡
·露天面积:26 ㎡

房屋配备:
·空调供应
·自动灌溉系统
·壁炉
·备有衣柜
·花岗岩厨房操作台
·大理石楼梯
·私家停车位
·私家游泳池
·海景
·地契
项目简介:
秉承地中海居住区的设计理念,Pissouri 别墅在设计方面,为豪华联排地产提供了多种选择。 有2室,3室,4室,5室别墅或平房供您选择,适宜您作为暑假居所,居住地或是投资的需求。
大型园林为您的私家游泳池及烧烤提供了充足的场地。自选您的装修,可以配备燃烧木料的壁炉,有阳光甲板的凉亭,加上自然石材的修饰,使您的居所更具魅力。
有Pissouri 海湾的美景与塞浦路斯乡下风光的环抱,让Pissouri 的魔力来吸引你吧。高居于海岸线以上,这些物业高于潮湿地带,使您的居住地气候健康,清新。
设备设施:
● 离机场15分钟的路程
● 靠近高尔夫球场
● 靠近海滩
● 靠近娱乐设施
● 居民区安静
● 靠近绿化带
● 私家游泳池
● 海景与山区景观兼得
● 大型园林
● 烧烤区
Pissouri 别墅卫星定位图:

Pissouri 别墅场地平面图:

Pissouri 27号别墅一层平面图:

Pissouri 27号别墅二层平面图:

Pissouri 27号别墅侧面平面图:

|