网站首页
移民资讯
活动讲座
案例中心
安家指南
关于我们
About Us
美洲移民
美国
加拿大
巴拿马
多米尼克
欧洲移民
希腊
葡萄牙
匈牙利
马耳他
英国
西班牙
爱尔兰
意大利
德国
塞浦路斯
摩尔多瓦
大洋洲移民
瓦努阿图
澳大利亚
加勒比地区
安提瓜
圣卢西亚
圣基茨
格林纳达
亚洲地区
日本
新加坡
香港
土耳其
免费咨询
免费评估
加拿大联邦创业移民SUV项目
加拿大萨省企业家移民项目
加拿大阿省雇主担保移民项目
加拿大大西洋四省移民试点计划
栏目分类
塞浦路斯移民
塞浦路斯房产信息
塞浦路斯移民资讯
当前位置:
美加金联移民
>
塞浦路斯护照项目
>
塞浦路斯房产信息
>
塞浦路斯 Mandria 花园别墅101栋1号公寓【包出租】
时间:2012-11-10 11:10
浏览量:
二层别墅(家具齐全)
•
2个卧室,2个洗手间
•总覆盖面积:
102㎡
房屋配备:
• 三相电
• 空调供应
• 带顶走廊
• 双层玻璃窗
• 浴室套间
• 家具(+€11,760)
• 花岗岩厨房台面
• 海景
• 升级版卫生间
项目简介:
Mandria Gardens 位于Mandria和平村边沿,靠海,距离帕福斯镇仅10分钟路程,驾车很快就能到达Aphrodite Hills 和 Secret Valley高尔夫球场,并且离知名的标志性景点Petra tou Romiou很近,它是象征着爱与美的女神-阿芙罗狄蒂的神话出生地。
此项目提供一居及两居室的公寓和阁楼,三居独立式别墅。有两个大的公共游泳池,都位于美丽、宽敞的园林里,内有一个俱乐部供居民使用。选择的传统风格和表面处理适合开发此地区,此项目性价比很高。
Mandria村周边是柑橘和马铃薯种植园。实际上由于游客免进,并且拥有与世隔绝的沙滩洞穴,使它非常的安静、并未被破坏。村里有一个银行、礼品商店和传统的咖啡店。
设备设施:
● 距帕福斯机场5分钟路程
● 距帕福斯镇10分钟车程
● 距阿芙罗狄蒂的出生地3分钟路程
● 充足的停车区域
● 卫星系统
● 临近 Aphrodite Hills & Secret Valley 高尔夫球场
● 俱乐部,餐厅,酒吧
● 园林
● 两个公共游泳池
● 靠海
Mandria 花园别墅卫星定位图:
Mandria 花园别墅
场地
平面图:
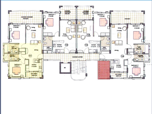
Mandria 花园别墅101 栋 1号公寓平面图:
Mandria 花园别墅101栋1号公寓二层平面图:
分享到:
美加金联二维码生成器
相关文章
塞浦路斯Vikla别墅75号【包出租】
塞浦路斯 Pissouri 别墅12号【包出租
塞浦路斯珊瑚湾别墅217/218D号
塞浦路斯Vikla别墅88号【包出租】
塞浦路斯 Argaka 海滩别墅12号
塞浦路斯Pissouri 别墅 69 号【包出租
塞浦路斯 Polis 海滩别墅4号
塞浦路斯 Paphos 花园别墅Mimosa cour
总裁动态
更多
2015年03月20日 创办人与美国华盛顿市副市长Jeff Mill
创办人应邀与安提瓜现任副总统 Mr.Hon.Robin Yearwood
2014年05月21日 美加金联创办人受邀参加“加中经济讲
创办人与魁北克省省长Mr.Jean charest合影
荣誉资质
更多
美加金联荣获2019国际移民暨投资文化交流峰会专业诚信
公司营业执照
公安部因私出入境中介机构资质
美加金联公司副总经理张春蕾女士当选为因私出入境中介
全国免费咨询热线
400-610-6008
工作日一线畅通
010-6526-4178
24小时专家热线
136-7103-9588
【扫一扫】
关注美加金联官方微信
有机会参加欧洲免费看房团
咨询
评估